Прочие
Административное здание недалеко от Полоцка
Витебская область, Полоцкий район 55.465348998343856,28.720842375065452
Частная Полоцкий р-н, Экиманьский с/с, 12/1-1 в 0,3км к востоку от деревни Ксты
Способы предоставления
Продажа
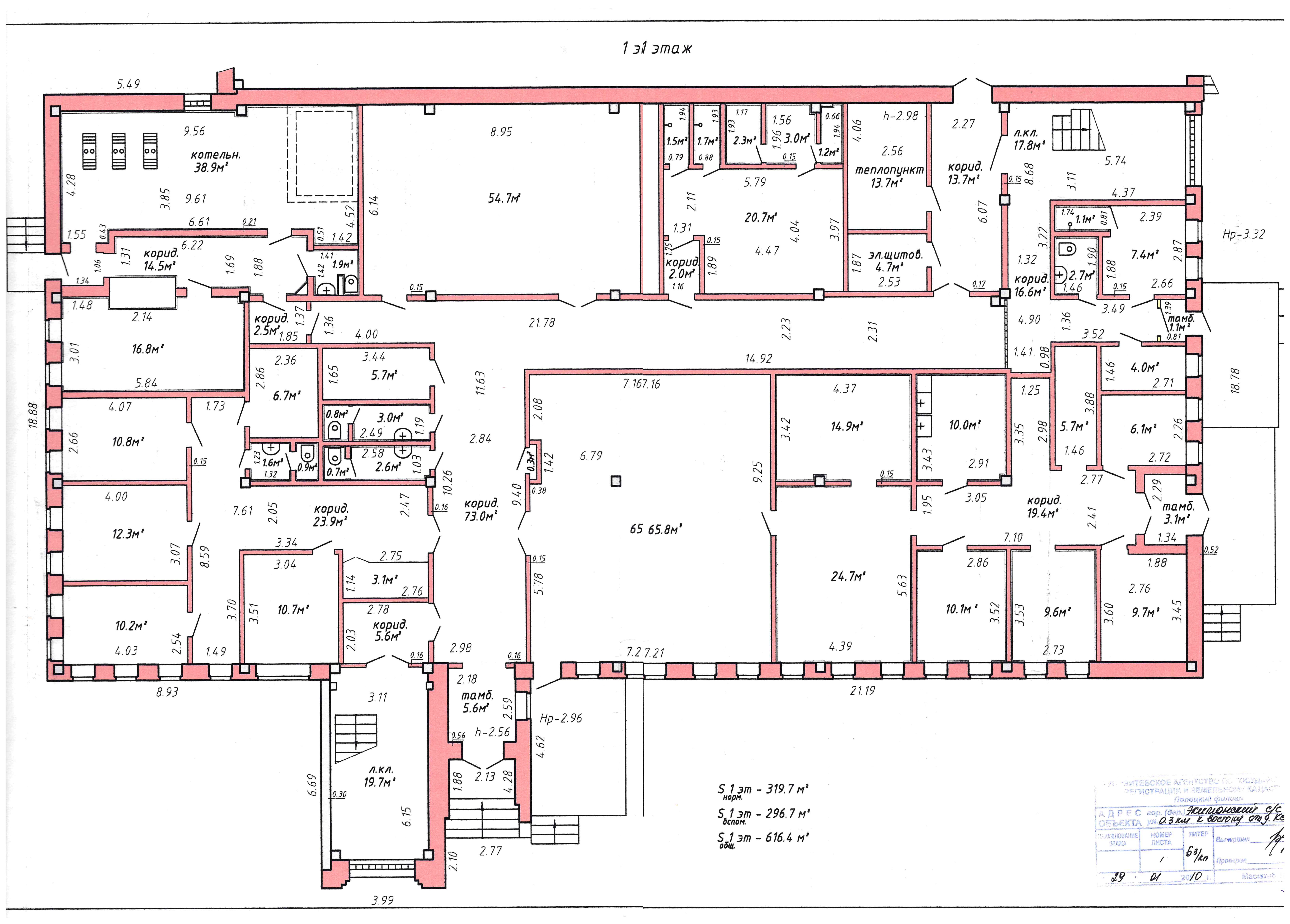
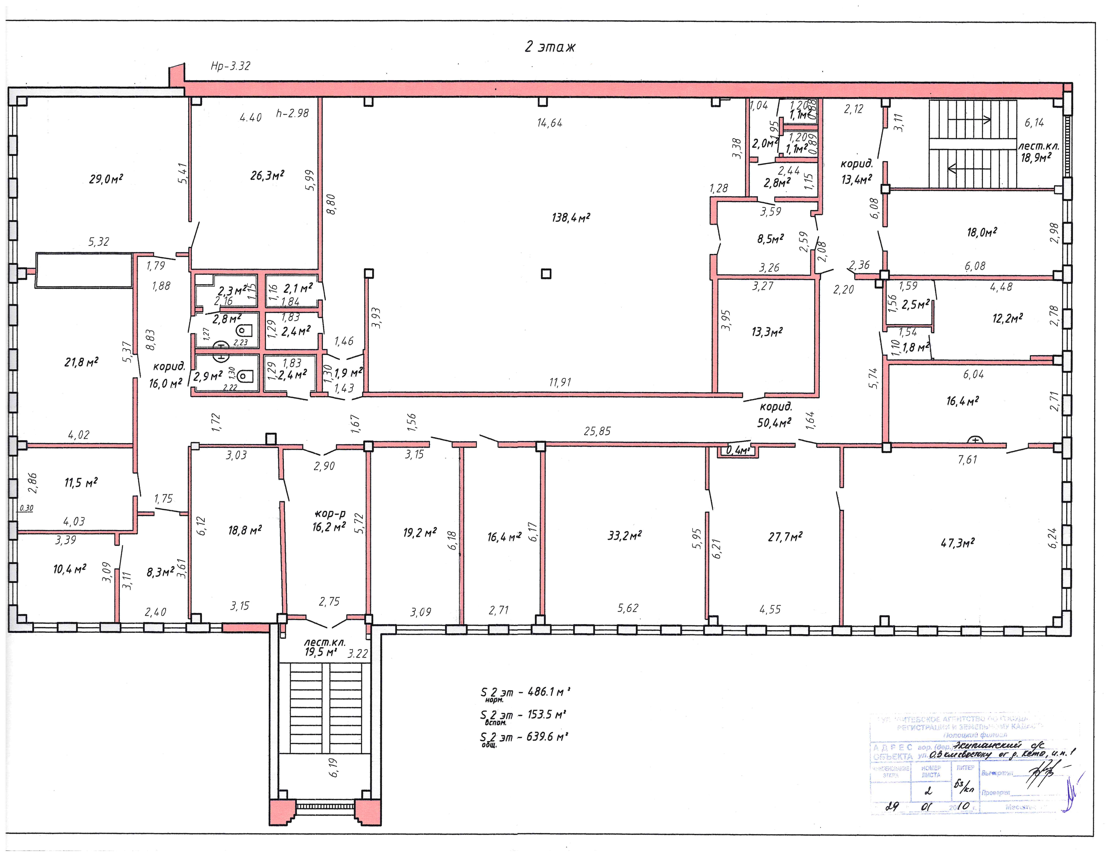
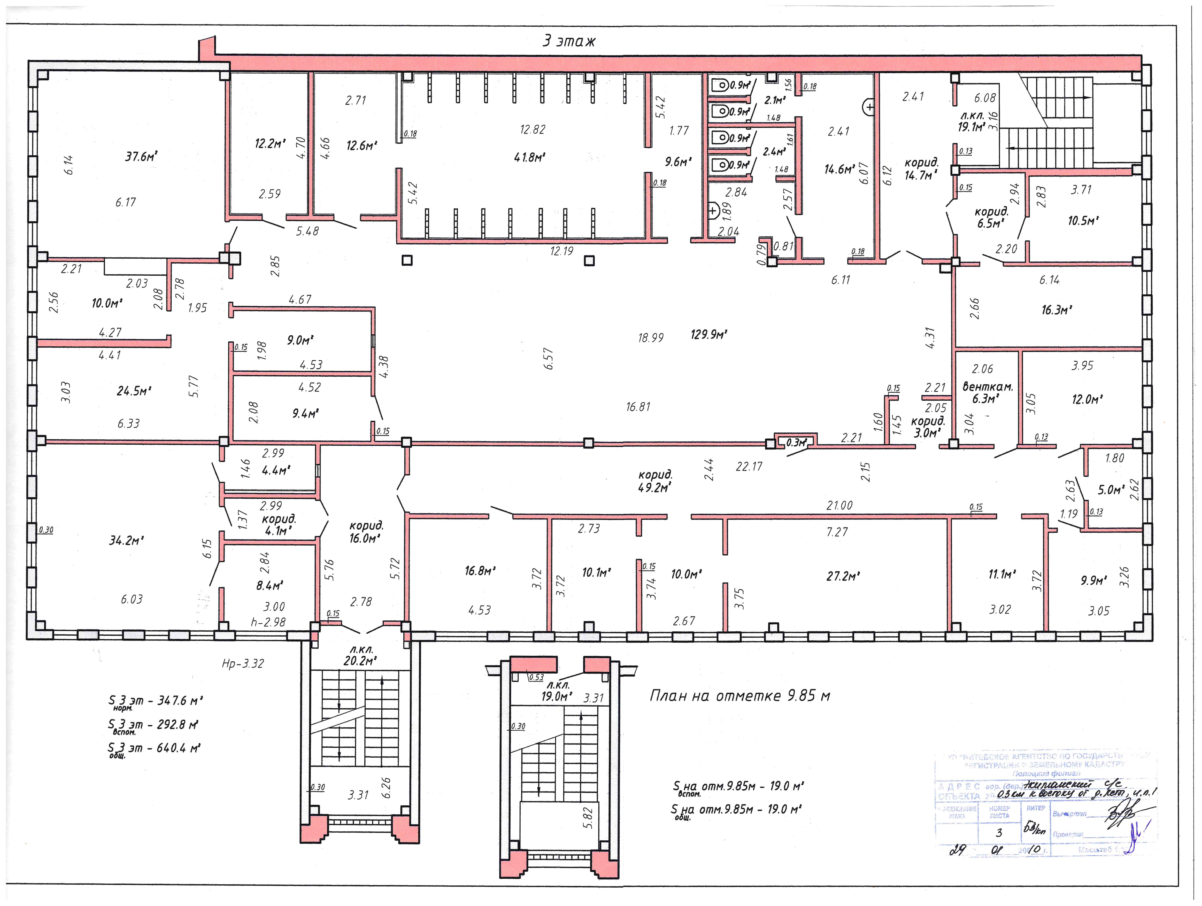
Площадь помещений здания, м²
1915
Балансодержатель
ООО "СМ"
Стоимость объекта, $
167600
Год постройки
1992
Общая характеристика
Тип объекта
Отдельный объект
Площадь земельного участка (га)1.34
НазначениеАдминистративное
Количество этажей3
Материал стенкирпич, панели, металлический профильный лист
ПерегородкиЕСТЬ
Система вентиляцииЕСТЬ
ОсвещениеЕСТЬ
Санитарные зоны или иные ограничения-
Наличие рядом других значимых объектов с указанием видов деятельностирасстояние до города Полоцка 700м (по Вильнюсскому шоссе)
Скачать документ 1Инфраструктура
Транспортное сообщение
Дороги республиканского значения
Дороги республиканского значенияР45
0.04 (расстояние от объекта, км)
Инженерные коммуникацииГазоснабжение
Описание инженерных коммуникацийПроведен капитальный ремонт крыши с утеплением, газоснабжение природным газом.
Скачать документ
Заинтересовал проект 220030, г. Минск, ул. Берсона, 14
инфраструктураслои
Поддержка
Бизнес-инкубаторы
СЭЗы
Преференциальные режимы
Малые и средние города
Технопарки
Центры поддержки предпринимательства
Ассоциации и Союзы
Кластеры
Подготовка кадров
ВУЗы
Колледжи
Транспорт и логистика
Аэропорты
Логистические хабы
Речные порты
Железные дороги
Электросети
110кВ
220кВ
330кВ



